Centre de dialyse de Montfermeil - image 1
Santé

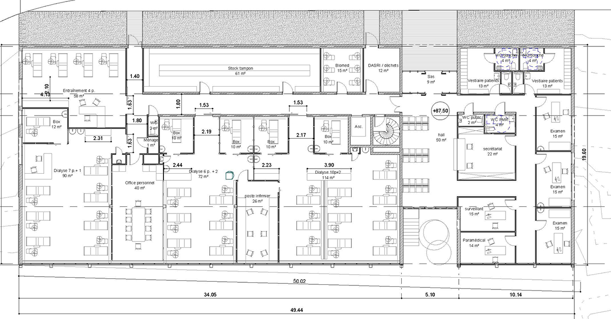
Centre de dialyse de Montfermeil

Création d’un centre de dialyse 12+2 postes sur le site du GHEF

LocalisationMontfermeil, 93370
Maîtrise d’ouvrageNephroCare Ile de France
MissionBase + OPC
Surface1300 m²
Montant des travaux5 800 000 € HT
Livraison2026
Centre de dialyse de Montfermeil - image 2
Centre de dialyse de Montfermeil - image 3
Centre de dialyse de Montfermeil - image 4