Centre de dialyse IMM - Paris - image 1
Santé

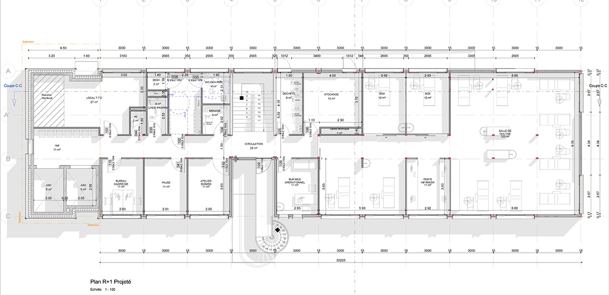
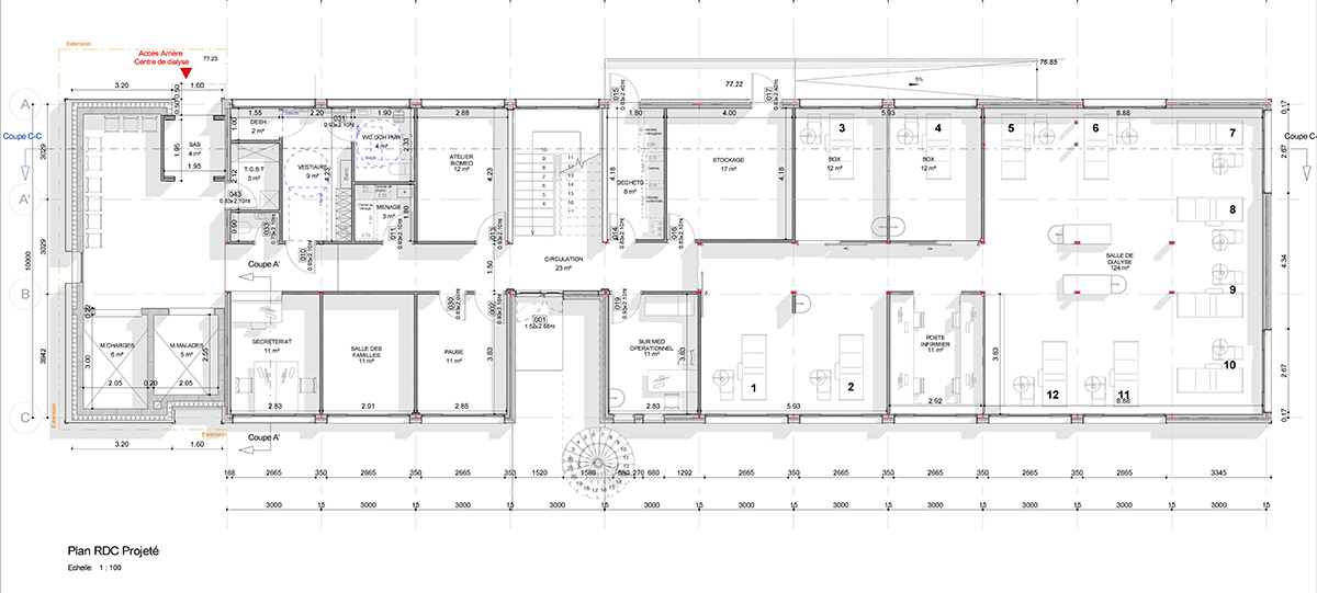
Centre de dialyse IMM - Paris

Relocalisation du service d’hémodialyse Restructuration lourde et extension du bâtiment administratif

LocalisationParis, 75014
Maîtrise d’ouvrageInstitut Mutualiste Montsouris
MissionBase + OPC
Surface680 m²
Montant des travaux1 900 000 € HT
Livraison2025
Centre de dialyse IMM - Paris - image 2
Centre de dialyse IMM - Paris - image 3