Centre de santé de Bagneux - image 1
Santé

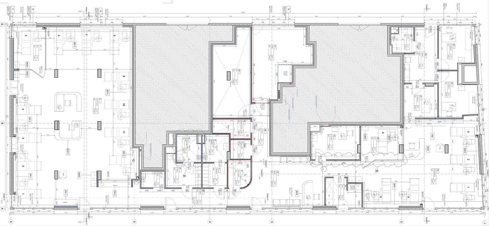
Centre de santé de Bagneux

Création d’une maison médicale comprenant un centre de dialyse 18 postes.

LocalisationBagneux (92220)
Maîtrise d’ouvrageDr Mihoubi
MissionBase + OPC
Surface470 m²
Montant des travaux600 000,00 € HT
Livraison2025
Centre de santé de Bagneux - image 2
Centre de santé de Bagneux - image 3
Centre de santé de Bagneux - image 4
Centre de santé de Bagneux - image 5
Centre de santé de Bagneux - image 6
Centre de santé de Bagneux - image 7
Centre de santé de Bagneux - image 8
Centre de santé de Bagneux - image 9