PAJA - Hôpital Robert Debré - image 1
Santé

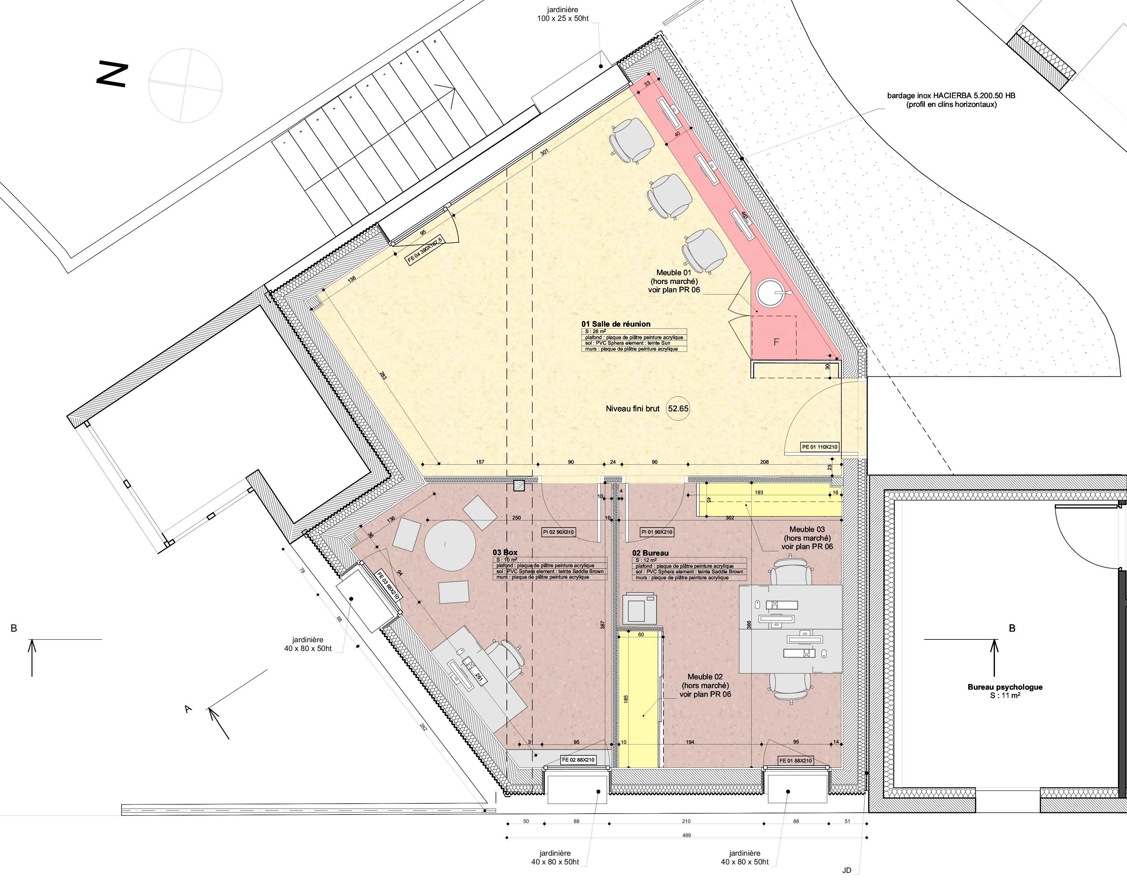
PAJA - Hôpital Robert Debré

Espace de réunion et de consultation psychiatrique et paramédical

LocalisationParis, 19ème
Maîtrise d’ouvrageAPHP
MissionBase + OPC
Surface60 m²
Montant des travaux120 000 € HT
Livraison2019
PAJA - Hôpital Robert Debré - image 2
PAJA - Hôpital Robert Debré - image 3
PAJA - Hôpital Robert Debré - image 4
PAJA - Hôpital Robert Debré - image 5
PAJA - Hôpital Robert Debré - image 6
PAJA - Hôpital Robert Debré - image 7
PAJA - Hôpital Robert Debré - image 8