Surélévation d'une maison - image 1
Habitat

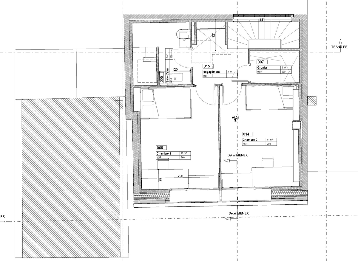
Surélévation d'une maison

Intervention en site occupé

LocalisationLes Lilas, 93260
Maîtrise d’ouvrageParticulier
MissionBase + OPC
Surface120 m²
Montant des travaux195 000 € HT
Livraisonjuillet 2023
Surélévation d'une maison - image 2
Surélévation d'une maison - image 3
Surélévation d'une maison - image 4
Surélévation d'une maison - image 5